1722 COUNTY 18 ROADNorth Grenville, ON K0G1S0




Mortgage Calculator
Monthly Payment (Est.)
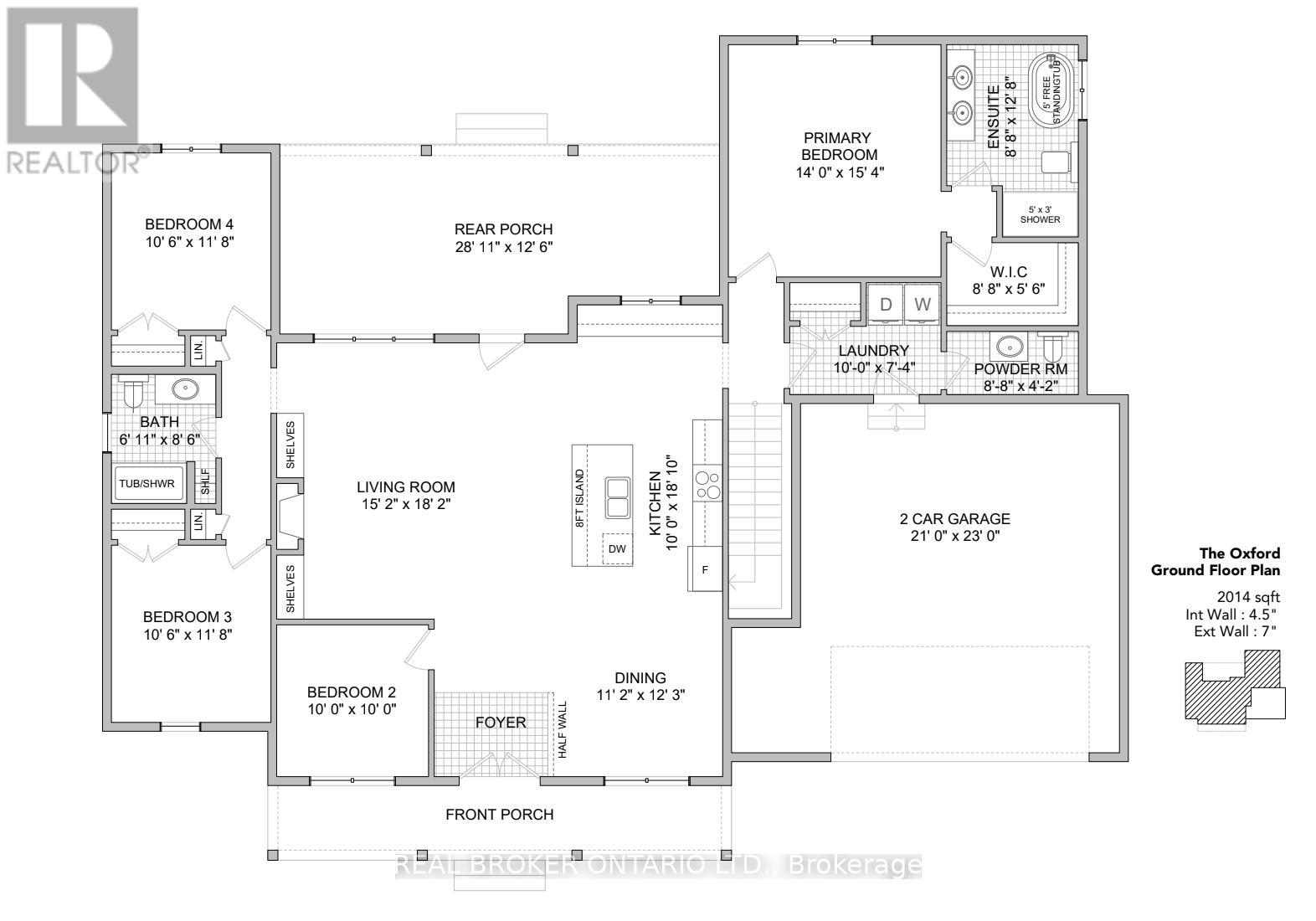
$5,247Welcome to The Oxford, a masterfully crafted new build by ArchStone Homes, nestled along the shores of Kemptville Creek.This impressive bungalow offers an exceptional main-floor living experience, where a spacious open-concept living room, dining area, and kitchen with a large island flow together with ease. Whether you're hosting a dinner party or enjoying a quiet evening, the layout adapts effortlessly to every occasion. Step through to the expansive rear porch and let the peaceful creek views do the rest.The primary suite is a genuine sanctuary, featuring a generous walk-in closet and a beautifully appointed ensuite with a freestanding tub and separate shower. Four bedrooms in total make this home as practical as it is impressive, with a full bath, powder room, and main-floor laundry rounding out a layout designed for real life.The modern farmhouse exterior, complete with a covered front porch and double garage, strikes the perfect balance between curb appeal and functionality. The full walk-out basement opens the door to endless possibilities, from additional living space to an in-law suite.Sitting on a deep, private lot with direct frontage on Kemptville Creek, this is country living without compromise, just minutes from Kemptville's shops, schools, and amenities. (id:31684)
| 2 days ago | Listing updated with changes from the MLS® | |
| 2 days ago | Listing first seen on site |
The trademarks MLS®, Multiple Listing Service® and the associated logos are owned by The Canadian Real Estate Association (CREA) and identify the quality of services provided by real estate professionals who are members of CREA. Used under license.
The trademarks REALTOR®, REALTORS®, and the REALTOR® logo are controlled by The Canadian Real Estate Association (CREA) and identify real estate professionals who are members of CREA. These trademarks are owned or controlled by The Canadian Real Estate Association (CREA) and identify real estate professionals who are members of CREA (REALTOR®) and/or the quality of services they provide (MLS®).
This REALTOR.ca listing content is owned and licensed by REALTOR® members of The Canadian Real Estate Association.
